Bringing classic Limestone to a listed property in East Sussex
Our brief here was simple
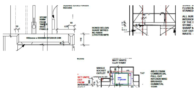
To create a monolithic style worktop, with an integral sink, from a Belgian Fossil Limestone with specific workmanship constraints to match a worktop installed previously at an overseas property.
The making was challenging
Our client was managing the project from overseas, which meant liaising remotely and coordinating with on-site teams to achieve the correct detailing.
Fortunately, the architect’s drawings were very detailed, and our client was not only always available to chat through on the telephone but also knew exactly what they wanted to achieve with the end result.
Timeless Surfaces for Modern Kitchens
Symetrical Patterning
Limestone is a challenging material to work with. It can be very fragile during processing and is prone to chipping as our blades exit the cuts.
The fully fabricated and waterproofed Limestone sink created its own tricky obstacles.
Alongside using our latest CNC technology, our skilled masons were able to create a very impressive, smaller detail on the edge and a stunning sink, which was not only visually appealing but had a lovely, handcrafted base with a fall to the drain.
This made it fully functional as a traditional sink.
From Concept to Reality
The appearance of the 100 mm-thick worktops was created using a 20mm base slab and mitre-bonded edges to give an invisible seam along the adhered joints.
We aimed to create a product that not only exceeded our clients’ expectations but was of a superior finish to the existing overseas installation.
As you can tell from this beautiful end product and installation, our client was over the moon with the results.
As you can tell from this beautiful end product and installation, our client was over the moon with the results.
In general, these materials need to be viewed in full format to appreciate the overall patterning and tone and we hold many types at our showroom location for viewing. For slabs and materials not seen here or in our stocks, we will arrange visits to the main importers where entire ranges in full slab format can be seen.
Please feel free to come down to see us or send an inquiry through our Contact Us form so we can be part of your next project.
Book A Showroom Appointment
Contact Us
Our team are here to help with any questions or enquiries you have. Whether you need help regarding one of our services, or stones or need further information about a stone, our specialists will be able to answer your questions.
Please complete and submit the form and we will get back to you as soon as possible, thank you.
sales@surreymarbleandgranite.co.uk
Surrey Marble and Granite
Units 2-4, Fernhurst Business Park,
Henley Common, Fernhurst,
GU27 3HB










